Lot de conception approuvée Faro, Conceição e Estoi
- Terrain
- 213 m2
Référence: TC1265
Description
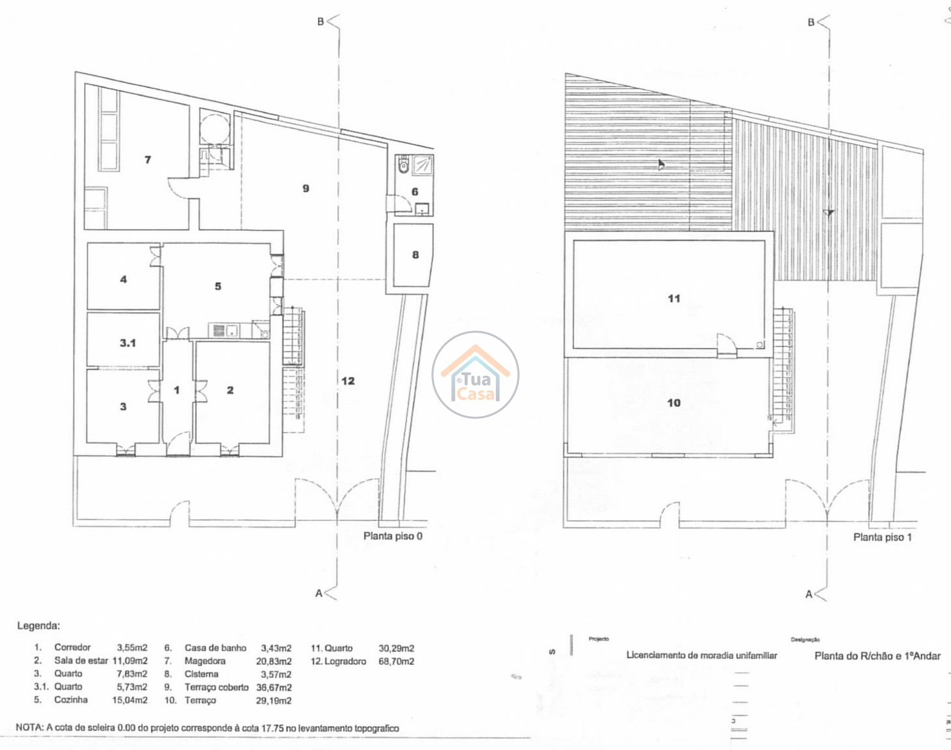
Terrain urbain avec 213m2 avec projet approuvé.
Situé dans un quartier calme, à 5 minutes de l'aéroport de Faro
Terrain déjà avec de l'eau, de la lumière et des installations sanitaires.
Venez visiter cette opportunité!
Caractéristiques
- Référence: TC1265
- Prix: 142.000€
- Surface du terrain: 213 m2
- Certificat de performance énergétique: N/A
Contact
Susana DuarteFaro, Olhão
- TuaCasa Portugal
- AMI: 11063
- [email protected]
- Rua Almirante Reis, 8700-364 OLHÃO
- 935 336 918 / 289 843 439
